
The Frost Place Celebrates $130,000 Grant Award
December 9, 2025
We are grateful to report that The Frost Place has received a $130,000 matching grant from New Hampshire’s Land Community Heritage Investment Program (LCHIP). We have begun our fundraising efforts to meet this match, which will allow us to replace the failing foundation in Robert Frost’s Franconia farmhouse. The Frost Place will celebrate its 50th anniversary in 2026, and we cannot think of a better way to mark the occasion than to embark on this important preservation project!
It seems there has always been a struggle against the constant influx of water in the crude dirt cellar, which has undermined the structure through the years. One section of the cellar’s stone wall even collapsed recently; this work is long overdue.
In a February 1919 letter, Mrs. Elinor Frost wrote to her daughter Lesley:
“We have had a long storm, and it hasn’t stopped snowing yet. It began with rain for a whole day and night, then it turned to snow, and has snowed for two days and nights. The snow is deeper than it has been all winter, I guess, and there is a lot of water in the cellar. Papa is afraid that if the snow melts suddenly, as it is very liable to do, the furnace will be flooded and spoiled. We have never had so much water in the cellar before.”
We plan to raise the house off the existing foundation, remove that foundation, and then install drainage and a waterproofed, poured concrete crawlspace. It’s not a glamorous project, but the house will once and for all be protected from the harmful effects of wetness and an unstable foundation.
This undertaking will be our most ambitious since The Frost Place was founded, and can only be done with your help. Because you value the place of poetry and the arts in today’s fractious world, we’re hoping we can count on you to help preserve and protect this literary landmark. Your generous donation will help to ensure a firm (and dry) foundation for centuries to come.
Together, we can ensure that Robert Frost’s farmhouse in White Mountains will remain to delight and inspire generations to come.
About the New Hampshire’s Land and Community Heritage Investment Program
The New Hampshire Land and Community Heritage Investment Program (LCHIP) is an independent state authority providing matching grants to New Hampshire’s municipalities and non-profits, helping to preserve the state’s most important natural, cultural, and historic resources and ensure their contribution to the economy, environment, and quality of life in New Hampshire. This year, 31 grants totaling more than $3.5 million to 26 communities and nonprofit organizations throughout the state we awarded. LCHIP grants are funded by a $25 fee assessed when deeds, mortgages, and plans are recorded at the state’s ten registries of deeds. Since 2001, LCHIP has awarded 646 grants, totaling over $68 million. As of July 2025, the program’s investment has helped to conserve 247,000 acres of land and rehabilitate 192 historic structures across 206 NH communities. Learn more about how LCHIP is helping to preserve and protect New Hampshire’s heritage at LCHIP.org, by following LCHIP_NH on Instagram, or Facebook

An Update from Our Chairman of the Board, Don Metz
November 1, 2025
Dear Friend of the Frost Place,
I’m writing with some very exciting news. But first, a bit of relevant background: In 1856, a farmer named Ezra G. Hunt built a modest little house on Ridge Road in Franconia. This house became home to Robert Frost and his family from 1915 to 1920. Today, thanks to the partnership of the Frost Place Board, the Town of Franconia, and generous individual supporters, we have been working steadily to restore the home. We now have a plan to address the area that has long been the source of many woes – the crude, wet dirt cellar – which will protect Frost’s former home for the future.
With financial support from NH Preservation Alliance, we took the necessary first step in this process and hired North Country Architect to complete a historic building assessment on the house. This included creating a roadmap of stewardship recommendations for this important literary landmark. Our highest priority is to finally address the foundation that has remained chronically wet, undermining the entire structure, despite attempts at repair through the years.
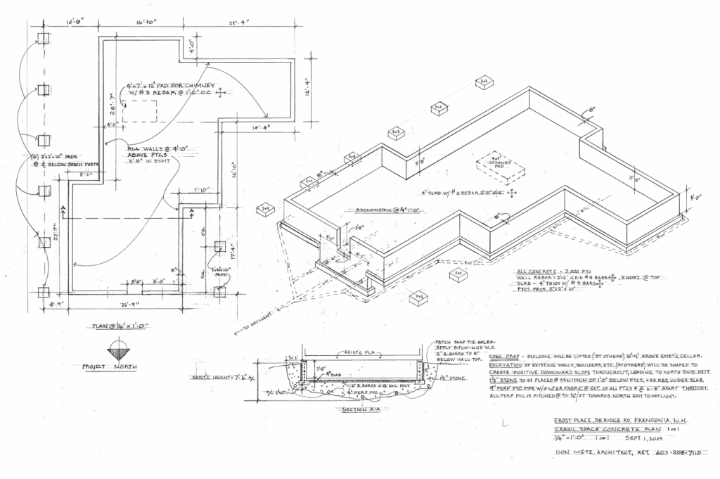
Our plan includes raising the entire house above the existing foundation, removing the crumbling, leaking walls and adding several feet of gravel and multiple perforated drainage pipes. Then, a reinforced concrete foundation will be poured on top of it and the house lowered back down onto its forever-dry basement. See the diagram below.
We will soon know if we were selected to receive a matching grant from New Hampshire’s Land Community Heritage Investment Program (LCHIP), a nonprofit that helps to protect and preserve historic buildings like ours. We have our fingers crossed, but the overall cost of this project is daunting at an estimated at $260,000.
This undertaking will be our most ambitious since The Frost Place was founded, and can only be done with your help. Because you value the place of poetry and the arts in today’s fractious world, we’re hoping we can count on you to help preserve Robert Frost’s enormous literary legacy. Your generous donation will help ensure a firm (and dry) foundation for centuries to come.
With gratitude,

Chair, Friends of the Frost Place Board of Trustees
Construction Plans

We are lucky to have our own in-house architect and Board President, Don Metz, to manage this project!
Protecting Frost’s Home for the Future
